Description
The SV60 is a range of full lift flanged safety valves suitable for use on steam, inert industrial gas and water services.
Please contact Spirax Sarco for suitability of any other media.
Available types
| Model and material | Bonnet and cap configuration | ||
| SV604 SV607 |
Carbon steel SG iron |
Closed bonnet | Open type easing lever |
| Sealed cap | |||
| Open bonnet | Packed easing lever – DN20 to DN100 only | ||
| Open type easing lever | |||
Applications
The SV60 is suitable for the protection of steam boilers, pipelines, pressure vessels, compressors and receivers and most general process industry applications.
Certification
A manufacturers’ Typical Test Report is provided as standard for each valve which will include valve set and hydraulic test pressure. Also available on request is material certification in accordance with EN 10204 3.1.
Standards and approvals
The SV60 carries the mark and complies with the requirements of
the European Pressure Equipment Directive 2014/68/EU falling within
Category 4 for Group 2 gases.
Seat tightness to ASME/API Standard 527-1992.
Lloyds Register (LR) type approval – Certificate number 01/00125 (E2).
The SV604 (PN flanged) is approved by the TÜV to AD-Merkblatt A2,
AD-Merkblatt A4, TRD 421, Vd TÜV 100, 100/4.
Sizes and end connections
| Inlet sizes: DN20, DN25, DN32, DN40, DN50, DN65, DN80, DN100, DN125 and DN150. | Standard PN flanges are to EN 1092 and ASME 300 flanges to EN 1759-1. |
||
| Valve type | Inlet connection | Outlet connection | |
| SV607 | PN16 (DN65 to DN150 only) | PN16 | |
| PN25 | PN16 | ||
| SV604 | PN40 | PN16 | |
| ASME 300 | ASME 150 | ||
Materials

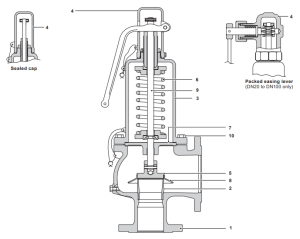
| No. | Part | Material | SV607/SV604 | |
| 1 | Body | SG iron/carbon steel | GJS-400-18LT/1.0619 + N | |
| 2 | Seat | Stainless steel | DN20 – DN100 1.4057 or for DN125 – DN150 ANC2 | |
| 3 | Bonnet | SG iron/carbon steel | GJS-400-18LT/1.0619 + N | |
| 4 | Cap | SG iron | GJS-400-15 | |
| 5 | Disc | Stainless steel, hardened 47-52 HRC (Hardened Rockwell ‘C’ Scale) |
DN20 – DN100 1.4021 or for DN125 – DN150 CA15 |
|
| 6 | Spring | Standard | Chrome-vanadium alloy steel | |
| For temperatures above 230°C | Tungsten alloy steel | |||
| 7 | Guide plate | SG iron | GJS-400-15 | |
| 8 | Skirt | Stainless steel | DN20 – DN100 1.4301 or for DN125 – DN150 1.4308 |
|
| 9 | Stem | Stainless steel | 1.4021 | |
| 10 | Body bolts | Steel | CK35 | |











